Puulaakso – Wood Valley
Pohjoisen Keski-Suomen ekologisen puurakentamisen osaamisverkostoa -Puulaaksoa- on rakennettu määrätietoisesti jo 90-luvun alusta. Puulaakso on erinomainen esimerkki siitä, miten hyvin hoidettu projekti muuttuu prosessiksi. Karstulan Puulaaksossa on nykyisin 108 hehtaarin alueella 20 yritystoimijan keskittymä.
Puulaakso sijaitsee Karstulan Humpilla. Alueella sijaitsee Keski-Suomen mittakaavassa iso mekaanisen puuteollisuuden osaamiskeskittymä. Yritysten välisellä yhteistyöllä halutaan kehittää edelleen puurakentamisen osaamista. Kunta on vahvasti mukana kehittämässä Puulaakson aluetta ja vastaa pitkälti toimivan infran toteuttamisesta alueella, yhdessä yritysten kanssa.
Puulaakso laajenee
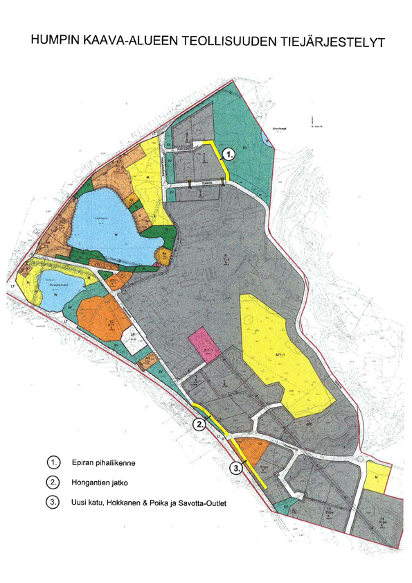
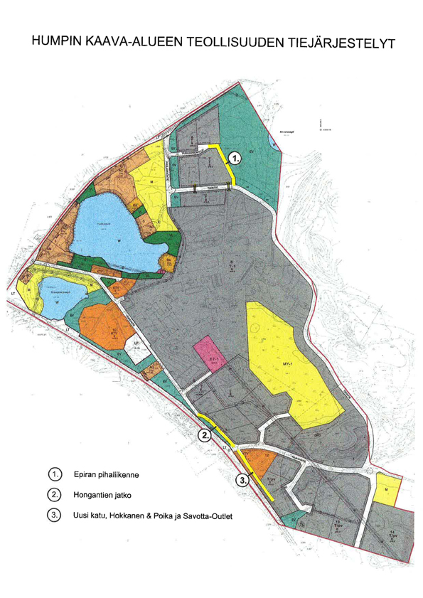
Kunnan uusin hanke alueelle onkin Koivurannan teollisuusalueen infran rakentamishanke, jossa olemassa olevaa Puulaakson yritysaluetta laajennetaan 30 hehtaaria ja tälle alueelle kaavoitetaan n. 20 kappaletta tilaa vaativan yritystoiminnan tonttia. Alueen läheisyyteen tullaan rakentamaan aurinkoenergiapuisto, joka tuottaa vihreää lähienergiaa uudelle yritysalueelle sijoittuville yrityksille. Karstulan kunta toteuttaa koko uudelle alueelle infran sisältäen katuverkoston, risteysjärjestelyt ja kunnallistekniikan.
Puulaakson alueella on toteutettu myös erilaisia TKI-hankkeita, joista viimeisin hanke ”Puulaakson alueen innovaatio ekosysteemin laajentaminen” pyrki kehittämään ja aktivoimaan alueen yritysverkostoa yhä kestävämmän TKI-toiminnan edistämiseksi. Lisäksi hankkeen tavoitteena oli selvittää edellytyksiä ja tarpeita mitä TKI-toiminnan kehittäminen ja käynnistäminen alueella vaatii. Hankkeessa kartoitettiin tarvittavia sidosryhmiä sekä muita toimijoita, joiden avulla kehitystoimintaa ja verkoston yhteistyötä saadaan tiivistettyä entisestään.
Hanke kartoitti myös, minkälaisia kumppaneita Puulaakson verkostoon edelleen kaivataan ja tarvitaan. Ko. hankkeelle on haettu jatkohanketta.
Uusien yritystonttien tiedustelut:
yrityskehittäjä Janne Taavitsainen p. 044 459 6585, janne.taavitsainen@karstulanseutu.fi.
Uusien tonttien varaukset ja myynti:
tekninen johtaja Mari Voimäki p. 044 459 6623, mari.voimaki@karstula.fi.
